Désolé, cet objet est déjà loué
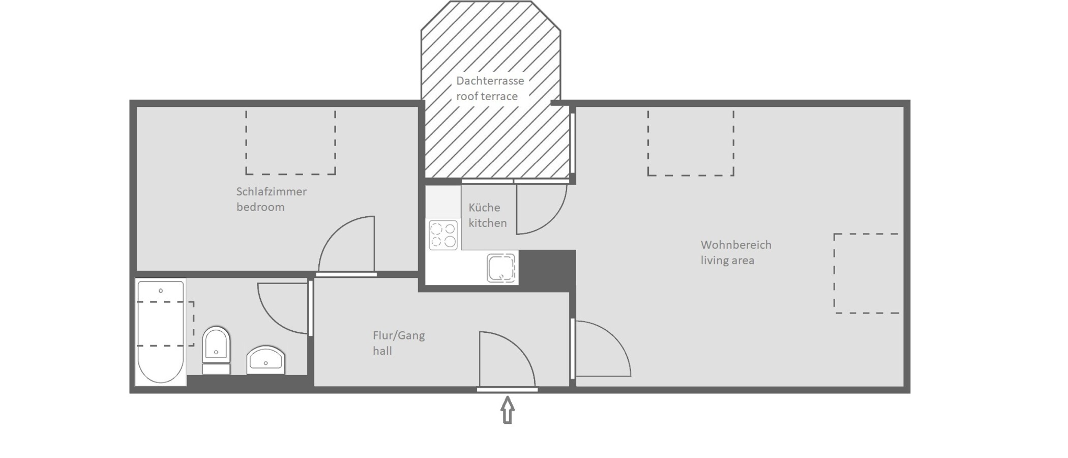
Appartement avec terrasse sur le toit meublé à Großhadern
Alentours
München Großhadern
Shopping:
pharmacie, boulangerie, magasin d'alimentation
nourriture et des boissons:
salons de thé, bistrot, pizzerias, restaurants
