Désolé, cet objet est déjà loué
81735 München
ID 9990
1 pièce
env. 32 m²
Étage 3
ID 9990
Create search profile
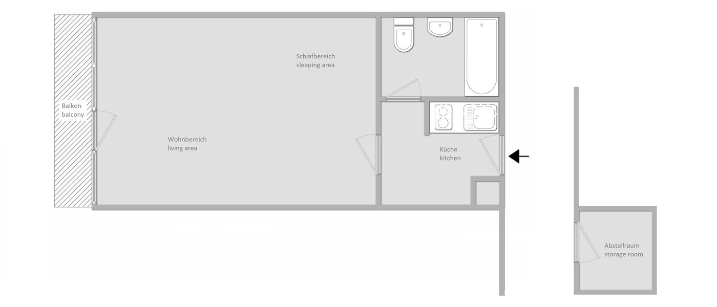
The modern and stylishly designed 1-room apartment with balcony is located in Ramersdorf. The convenient foldaway bed makes the living area appear more spacious. The bright bathroom is equipped with a mini washing machine and there is also a storage room on the same floor. The shopping center "Life" is only an 8-minute walk away. The nearby Ostpark offers many sports and leisure activities, as well as a popular beergarden.
Similar objects
Frequently asked questions
Our service is free of charge for you as a tenant. After signing the contract, you pay the landlord the monthly rent and a one-off deposit (usually two months' rent).
If you have found a suitable offer on our website or would like us to send you suitable offers, please first fill out our registration form in full. Our consultants will then contact you as soon as possible to discuss the next steps. We would be happy to arrange a viewing appointment on site. Once you have decided on an apartment, we will discuss this with the landlord and draw up the rental agreement once approval has been granted.
The specified rental period is binding. For example, if an apartment is offered for 1 June, it cannot be rented earlier and, as a rule, not significantly later. If your desired rental period differs from the offer, please inform your consultant. If a fixed end date is specified, the apartment cannot be extended. In the case of a variable rental period, slight deviations may be negotiable with the landlord.
Private providers of flats and houses in Munich are subject to a minimum rental period of six months. The city of Munich considers rental periods of less than six months to be misuse of residential space, which is why we only arrange flats and houses for a minimum of six months or longer.
Commercial providers such as serviced apartments, on the other hand, are not allowed to rent for longer than 6 months in many locations. We therefore distinguish between short-stay and long-term offers.
In the Tegernsee region, private providers are also allowed to rent for shorter periods, which means we can offer furnished rentals here for as little as one month.
Commercial providers such as serviced apartments, on the other hand, are not allowed to rent for longer than 6 months in many locations. We therefore distinguish between short-stay and long-term offers.
In the Tegernsee region, private providers are also allowed to rent for shorter periods, which means we can offer furnished rentals here for as little as one month.
If you would like to view the property in person, please let us know. If the flat is still rented, our consultants will arrange an appointment with the current tenant. If the flat is already vacant, appointments can usually be arranged at short notice. Please note that the flat is usually rented to the person who makes a binding commitment first. Therefore, please do not plan your appointments too late, as the properties you are interested in may be rented out in the meantime.
Upon request, you can view our properties virtually via video call. On our website, you will find high-quality photos and videos of the property and its surroundings, as well as additional detailed information about each property.
The rental agreement is concluded between the tenant and the landlord. In most cases, the rental agreement is drawn up by Mr. Lodge – in consultation with the tenant and landlord – and forwarded to both parties for signature.
As agreed in the tenancy agreement, the flat must be professionally cleaned before it is returned. When you move out, a commercial final cleaning will be carried out by a specialist company commissioned by the landlord. The costs are based on the amount of work involved and are usually borne by the tenant. The landlord receives the invoice from the cleaning company and offsets the costs against the deposit. Thorough pre-cleaning can reduce the costs of commercial cleaning. Please refer to our checklist for details of what is included in a final cleaning.
