Désolé, cet objet est déjà loué

Appartement luxueusement meublé à Feldkirchen

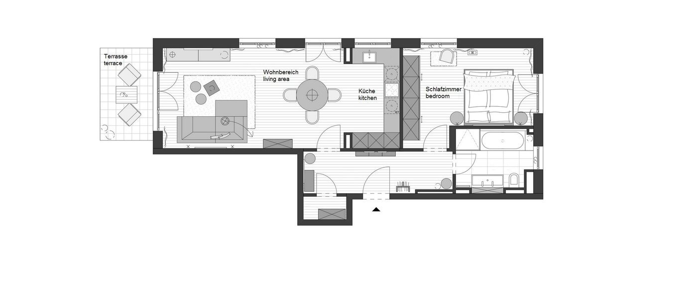
Brauereiweg
85622 Feldkirchen
ID 10282

2 pièces
env. 70 m²
Rez de chaussée
Disponibilité
dès que possible pour 6-36 mois
Durée min. du bail
6 mois
nombre de personnes
convient pour 2 personnes
Frais de service
Aucun
Restrictions
seulement pour les non fumeur, aucun animal domestique

Visite guidée vidéo

Visitez facilement votre nouvelle maison depuis n'importe où sur
.

vidéo
  • Complete furniture in modern and clear design (furnished in 2016)
  • Great ship floor oak parquet flooring
  • Underfloor heating in the entire apartment
  • High-quality kitchen with high-gloss fronts
  • Equipped with appliances by ALESSI, KARTELL, HAY, FISSLER, NESPRESSO, GROHE und BURGBAD
  • Washer-dryer by SIEMENS in the apartment
  • Walk-in shower
  • Large double sink in the bathroom
  • Comfortable, lage boxspring bed (180x200cm)
  • SoundLink Mini (bluetooth-loudspeakers) by BOSE to listen to music with your cellphone
  • 50“ LED, 4K, HD flatscreen TV by SAMSUNG  
  • Cozy terrace with furniture
  • Garage included
  • Grocery store (EDEKA) with bakery only 1 minute on foot
  • S-Bahn connection
  • Convenient highway connection

Équipement

internet
Télévision
aspirateur
Machine à laver
Sèche-linge
Machine à laver la vaisselle
Serviettes de bain
Linge de maison
Sèche-cheveux
Fer à repasser
Cave
Garage
Ascenseur
Balcon
Terrasse

Informations

Étage
Rez de chaussée - avec ascenseur
Année de construction
Nouvelle construction 2016
pièces
salon et salle à manger et salle à manger non séparés
Chambre à coucher avec sommier tapissier (180 x 200 cm)
Salle de bain avec douche et baignoire
Revêtements de sol
parquet, chauffage au sol
ameublement
comme neuf, de grande valeur, de haute qualité, de très bonne qualité, bien arrangé et clair
Cuisine
cuisine ouverte sur le salon, avec fenêtre, complètement équipée, plaques vitrocéramiques, hotte, four électrique, congélateur, micro-onde, machine à laver la vaisselle, machine à café (capsules), complet avec des plats
Détails de l'équipement
Lave linge et sèche linge combinés
écran plat, télévision
Haut-parleur „AirPlay“
linge de lit et de toilette inclus
linge de fer à repasser, planche à repasser, aspirateur
Internet
Wi-Fi
forfait internet illimité
frais compris dans le loyer
spéciaux
Terrasse
Petit jardin
Débarras
de stationnement
Garage souterrain - Plus d’informations: Se garer à Munich
frais pas enclus dans le loyer
frais mensuel 60,-€
Informations et explication du loyer
Inclus: charges, courant, internet
Optionnel: parking souterrain 60,- € /mois
Dépôt
2 mois de loyer
Redevance radiophonique
Redevance radiophonique pour les organismes de diffusion radiophoniques de droit public. La redevance radiophonique mensuelle doit être payée par le locataire directement à ARD ZDF Deutschlandradio, service de la redevance, et s’élève à 18,36 € par mois. Elle n’est pas incluse dans le loyer, sauf mention contraire spécifique : plus d'informations
diagnostic de performance énergétique
Année de construction: 2016
Type de certificat de performance énergétique: Certificat de performance énergétique à la base du besoin énergétique
Sources d'énergie principales: électricité
Classe d'efficacité énergétique: B
La consommation finale d'énergie: 58,10 kWh/(m²*a)
Sara Vaerini

Sara Vaerini

Chef d’équipe | Conseiller clientèle

Vous n'avez pas encore trouvé l'appartement qui vous convient ?

Notre équipe de location se fera un plaisir de vous aider dans votre recherche. Il vous suffit de remplir notre formulaire de recherche et nous vous contacterons dans les plus brefs délais.

Effectuer une recherche

emplacement de l'appartement

Brauereiweg

Feldkirchen

  • à la périphérie
  • très calme
  • env. 11,8 km à l´est du centre-ville
En savoir plus sur les environs
S-Bahn
Ligne S2, Arrêt Feldkirchen
bus
Ligne 228, Arrêt Feldkirchen, Rathaus
Lignes 228, 230, 234, 263 et 285, Arrêt Feldkirchen

Appartements similaires

appartement avec 2 pièces | Munich-Maxvorstadt | 1215
Vidéo
01.03.2026 pour 6-24 mois
2 pièces
42 m²
Munich-Maxvorstadt
1,690
€/mois
appartement avec 2 pièces | Munich-Hadern | 3824
Vidéo
01.03.2026 pour 6-24 mois
2 pièces
44 m²
Munich-Hadern
1,650
€/mois
appartement avec 2 pièces | Munich-Neuhausen | 13780
Vidéo
01.03.2026 pour 6-36 mois
2 pièces
72 m²
Munich-Neuhausen
2,150
€/mois
appartement avec 2 pièces | Munich-Glockenbachviertel | 13665
Vidéo
01.04.2026 pour 6-36 mois
2 pièces
70 m²
Munich-Glockenbachviertel
2,800
€/mois
appartement avec 2 pièces | Munich-Schwabing-West | 14415
Vidéo
01.03.2026 pour 6-36 mois
2 pièces
45 m²
Munich-Schwabing-West
1,850
€/mois

Questions fréquentes

Pour vous, en tant que locataire, notre service est gratuit. Après la signature du contrat, vous payez au bailleur le loyer mensuel ainsi qu'une caution unique (en général deux mois de loyer).

Si vous avez trouvé une offre qui vous convient sur notre site web ou si vous souhaitez que nous vous envoyions des offres adaptées, veuillez tout d'abord remplir intégralement notre formulaire d'inscription. Nos consultants vous contacteront ensuite dans les plus brefs délais afin de discuter des étapes suivantes. Nous organisons volontiers une visite sur place. Si vous avez choisi un appartement, nous en discutons avec le propriétaire et établissons le contrat de location après avoir reçu son accord.

La période de location indiquée est contraignante. Si un appartement est proposé pour le 1er juin par exemple, il ne peut pas être loué plus tôt, ni même beaucoup plus tard en règle générale. Si la période de location souhaitée diffère de l'offre, n'hésitez pas à en informer votre consultant. Si une date de fin fixe est indiquée, l'appartement ne peut pas être prolongé. Si la période de location indiquée est variable, il est possible de négocier de légères différences avec le bailleur.

Les fournisseurs privés d'appartements et de maisons à Munich sont soumis à une durée de location minimale de six mois. La ville de Munich considère les périodes de location inférieures à six mois comme un détournement de l'usage d'un logement, c'est pourquoi nous ne proposons des appartements et des maisons que pour six mois ou plus.<br />De leur côté, les prestataires commerciaux tels que les appartements de service ne peuvent pas louer plus de six mois dans de nombreux endroits. Nous faisons donc une distinction entre les offres de courte durée et les offres de longue durée.<br />Dans la région de Tegernsee, les prestataires privés sont également autorisés à louer pour des périodes plus courtes et nous pouvons donc proposer une location meublée à partir d'un mois.

Si vous souhaitez une visite personnelle sur place, faites-le nous savoir. Si l'appartement est encore loué, nos consultants conviendront du rendez-vous avec le locataire actuel. Si l'appartement est déjà libre, des rendez-vous à court terme sont généralement possibles. Veuillez noter que l'appartement est généralement loué à la première personne qui fait une promesse ferme. Ne planifiez donc pas les rendez-vous trop tard, sinon les biens souhaités pourraient être loués entre-temps.

Sur demande, vous pouvez visiter virtuellement nos offres par appel vidéo. Sur notre site web, vous trouverez des photos et des vidéos de haute qualité du bien immobilier, des environs ainsi que des informations détaillées supplémentaires sur chaque objet.

Le contrat de location est conclu entre le locataire et le bailleur. Dans la plupart des cas, le contrat de location est rédigé par Mr. Lodge - en accord avec le locataire et le propriétaire - et transmis aux deux parties pour signature.

Comme convenu dans le contrat de location, l'appartement doit être rendu avec un nettoyage final professionnel. Au moment du départ, le bailleur confie le nettoyage final à une entreprise spécialisée. Les frais sont calculés en fonction du temps passé et sont généralement à la charge du locataire. Le bailleur reçoit la facture de l'entreprise de nettoyage et déduit les frais de la caution. Un nettoyage préalable approfondi permet de réduire les coûts du nettoyage commercial. Pour savoir tout ce qui fait partie d'un nettoyage final, veuillez consulter notre liste de contrôle.

Cookie notice
This website uses cookies to personalize content, customize and measure advertising, and provide a safe experience. By clicking the "Allow all and continue" button, you consent to the collection of data via cookies.
Merci d'activer les cookies dans les paramètres de votre navigateur !