Maison jumelée inondée de lumière avec jardin ensoleillé
Nous sommes fiers de vous présenter cette belle maison jumelée, nichée sur un terrain ensoleillé d'environ 300 m2 au bout d'une allée privée dans un endroit très calme. Les pièces principales sont orientées au sud et à l'est et bénéficient d'un lien étroit avec le jardin et d'une vue magnifique sur la verdure.
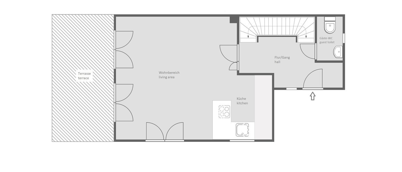
Le plan d'étage spacieux impressionne par sa disposition linéaire et lumineuse des espaces de vie. Au rez-de-chaussée, sur une surface d'environ 40 m2, se trouve un salon/salle à manger lumineux avec une cuisine ouverte et une cheminée confortable. Les grandes baies vitrées offrent une vue imprenable sur le jardin magnifiquement cultivé. La cuisine de haute qualité avec plan de travail en céramique est entièrement équipée de tous les appareils et a été récemment installée en octobre 2023. L'entrée spacieuse avec l'escalier séparé du salon est bien conçue. Derrière une porte coulissante en miroir se trouve une armoire pratique qui offre également beaucoup d'espace de rangement.
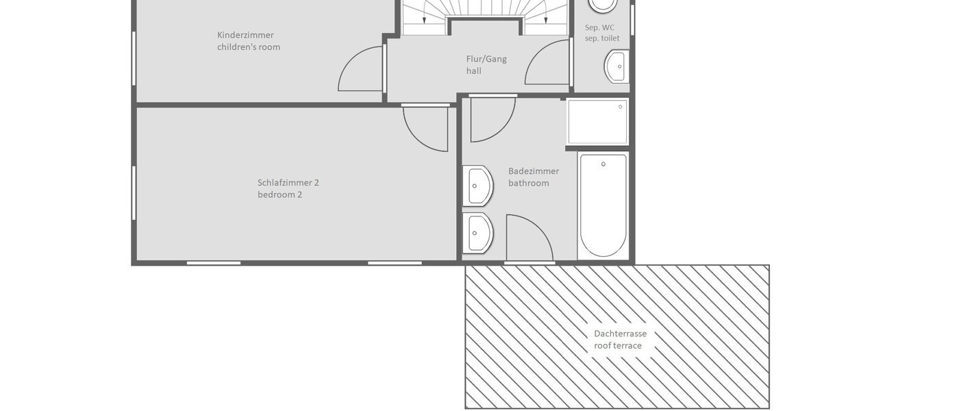
L'étage supérieur comprend deux chambres, une grande salle de bains et des toilettes séparées. La salle de bains, conçue avec goût, est équipée d'une grande douche, d'une baignoire, d'un radiateur sèche-serviettes et d'un meuble bas fait sur mesure sur lequel se trouvent les deux lavabos. Le grenier abrite actuellement la chambre principale avec un dressing attenant. Un bureau y a également été aménagé.
La salle de loisirs d'environ 25 m2 au sous-sol, très lumineuse grâce à deux généreux puits de lumière, offre d'intéressantes possibilités d'utilisation. Une buanderie avec lave-linge et sèche-linge est également disponible au sous-sol. Un garde-manger équipé d'un autre réfrigérateur et d'un congélateur se trouve juste à côté. La terrasse confortable avec des planches Bagkirai, le jardin joliment aménagé et le grand carport pouvant accueillir et charger deux véhicules, complètent cette propriété attrayante. Une très grande remise à outils, dans laquelle tous les ustensiles tels que les tondeuses à gazon, etc. peuvent être rangés, se trouve à côté de l'abri de voiture.
La commune d'Ottobrunn, avec une population d'environ 21 000 habitants, est située à la limite sud-est de Munich, à seulement 500 mètres des limites de la ville. Tous les commerces de première nécessité et les écoles se trouvent à proximité immédiate. La propriété proposée est proche du centre ville avec un centre culturel moderne et de nombreux équipements de loisirs tels que des installations sportives, un cinéma et des restaurants. La nouvelle école d'aéronautique de la TUM améliore encore l'emplacement. La gare est à 5 minutes à pied et l'autoroute A8 permet d'accéder rapidement aux Alpes.
Équipement
Première chambre à coucher avec lit double (200 x 200 cm)
deuxième chambre à coucher avec lit à la francaise
Chambre d'enfants
Dressing
Salle de bain avec douche et baignoire
deux toilettes
toilettes séparées
Sèche linge dans la cave
Télévision satellite, deux téléviseurs écran plat
linge de lit et de toilette inclus
linge de fer à repasser, planche à repasser, aspirateur
Terrasse, terrasse sur le toit
Jardin
Cheminée, bureau à domicile, débarras, Cave
avec équipement pour rechargement batterie électrique
frais compris dans le loyer
En su: courant, frais de chauffage, eau
Transports publics
Alentours
Ottobrunn
Shopping:
pharmacie, boulangerie, boucherie-charcuterie, droguerie, magasin d'alimentation biologique, magasin de fruits et légumes, marchand de boissons, fleuriste, teinturerie, magasin d'alimentation, marché
nourriture et des boissons:
restaurants, pizzerias, salons de thé, bistrot, brasseries en pleine air, glacier, cinéma
Type de certificat de performance énergétique: Certificat de performance énergétique à la base de la consommation
Sources d'énergie principales: gaz
Classe d'efficacité énergétique: A
Indicateur de performance énergétique: 46,50 kWh/(m²*a)
