Désolé, cet objet est déjà loué
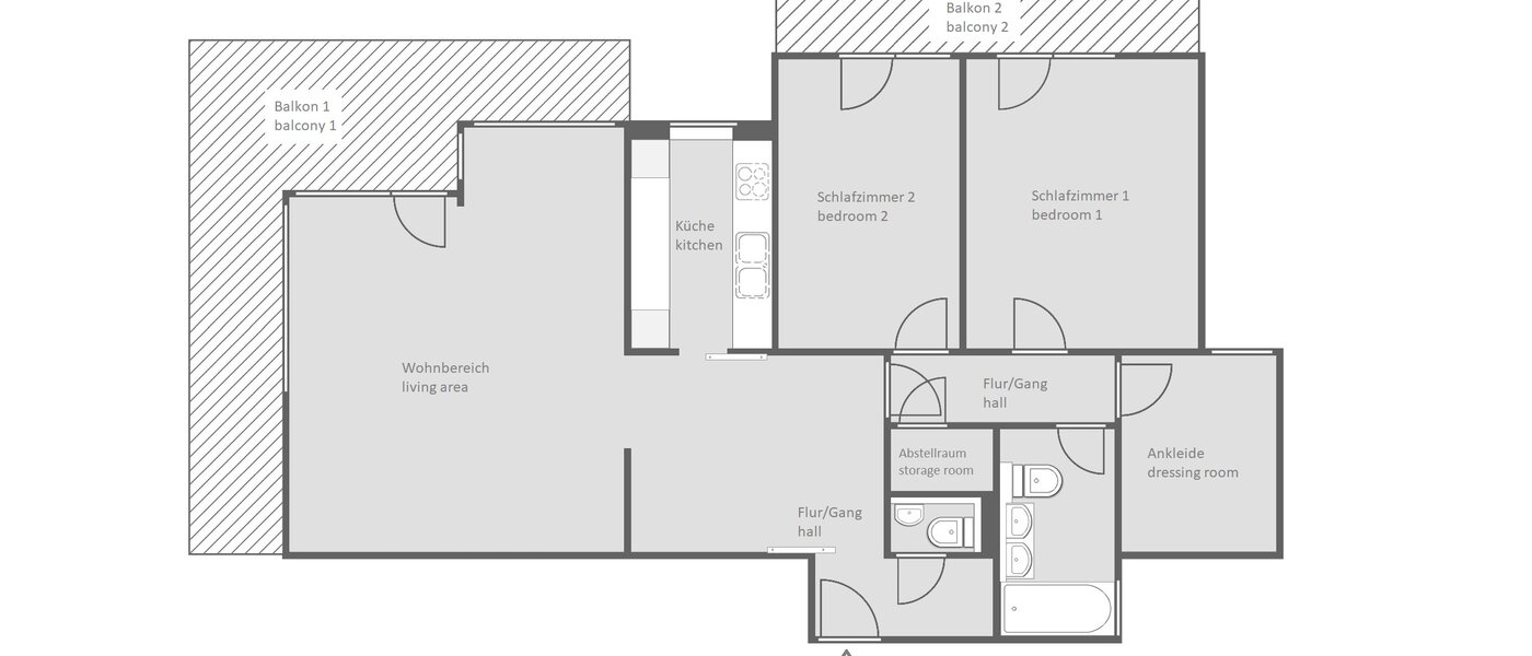
Appartement situé dans un endroit privilégié sur les berges de l'Isar
Traduit par DeepL
Alentours
München Menterschwaige
Shopping:
pharmacie, boulangerie
nourriture et des boissons:
brasseries en pleine air, salons de thé, restaurants
