Personne à contacter
Dr. Cornelia Koronakis
Dr. Cornelia Koronakis
Agent immobilier
+49 89 340 823-546
Chambre
1,5
Surface habitable env.
57 m²
Prix d'achat
€ 689 000,-
Frais de commission
2,975% TVA incluse
Emplacement
80639 München

FRIENDS TOWER - Habiter avec style de vie


Identifiant:
703131
Type d'objet:
Apartment
Surface habitable env.:
57 m²
Année de construction:
2016
Frais de l'association des propriétaires:
487 €
Etat du bien:
Maintenu
Ascenseur:
Oui
Salle de bain:
1
Toilettes invités:
Oui
Sous-sol:
Oui
Cuisine équipée:
Oui
Etages:
5
Revêtement du sol:
Carrelage, Parquet

Provision

Commission de l'acheteur : 2,975% TVA 19% incluse

Top-Highlights


  • Appartement lumineux exposé sud
  • Hauteur sous plafond d'environ 2,80 m
  • Concept d'habitat unique

Description


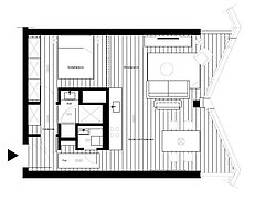
Cet élégant appartement d'une pièce et demie, orienté sud, situé au 5e étage de la FRIENDS TOWER, offre sur environ 57 m² un aménagement moderne et baigné de lumière.

La cuisine sur mesure haut de gamme s'intègre parfaitement au salon et à la salle à manger, tandis qu'une alcôve séparée par des rideaux garantit l'intimité. De grandes baies vitrées panoramiques à triple vitrage isolant et un système d'ombrage électrique garantissent une lumière naturelle abondante et un climat ambiant agréable. Des détails élégants tels que le parquet, le chauffage au sol et une salle de bains raffinée complètent l'intérieur. Les hauts plafonds d'environ 2,80 mètres soulignent l'impression d'espace et de légèreté. De plus, un espace de rangement pratique est disponible au sous-sol.

La FRIENDS TOWER propose des équipements communs exclusifs tels qu'une terrasse sur le toit avec vue sur les Alpes, un espace fitness et un salon-cuisine pour les événements privés. Un service de conciergerie assure un confort supplémentaire.

Cet appartement est idéal pour tous ceux qui recherchent une expérience de vie exceptionnelle à Munich.

Les charges mensuelles pour la place de parking s'élèvent actuellement à 56,00 €.

Prix d'achat de l'appartement : 689 000 € + prix d'achat de la place de parking individuelle : 35 000 € = total : 724 000 €

Équipement



    Cuisine :
    • Cuisine intégrée haut de gamme - Menuiserie réalisée par l'entreprise Holzrausch
    • Hotte aspirante, four électrique, plaque à induction, réfrigérateur, lave-vaisselle

    Salon/salle à manger :
    • Téléviseur à écran plat
    • Coin nuit séparé pour un havre de paix
    • Baie vitrée panoramique avec triple vitrage isolant et insonorisant et système d'ombrage électrique
    • Parquet et chauffage au sol pour un confort optimal
    • Lave-linge/sèche-linge

    Salle de bains :
  • Salle de bains au design exclusif avec douche à l'italienne à effet pluie et WC invités séparé


  • Confort et art de vivre à la FRIENDS TOWER :
    • Terrasse sur le toit au 15e étage avec une vue imprenable à 360° sur Munich jusqu'aux Alpes
    • Espace fitness
    • Kitchen-Lounge à réserver pour des soirées conviviales entre amis
    • Grands locaux à vélos fermés à clé
    • Espace de rangement au sous-sol
    • Service de conciergerie dans le hall d'entrée avec réception des colis, service de repassage des chemises et autres prestations
    • Connexion Internet haut débit pouvant atteindre 1 000 Mbit/s

    L'ensemble du mobilier, y compris la cuisine équipée et les équipements tels que canapé, télévision, couverts, etc., est inclus dans le prix d'achat. Une liste d'inventaire détaillée sera fournie lors de l'achat.

    Emplacement


    Neuhausen-Nymphenburg fait partie des quartiers résidentiels les plus prisés de Munich et allie une situation centrale à de nombreux espaces verts. Le quartier séduit par le magnifique château de Nymphenburg et ses parcs, ainsi que par l'animation qui règne autour de la Rotkreuzplatz. Le bien immobilier proposé est situé directement au bord du Hirschgarten, un espace de détente très apprécié.

    Les infrastructures sont excellentes : le Hirschgarten Forum, situé à proximité, abrite des supermarchés, un magasin bio, une droguerie, un pressing, un bureau de poste et des restaurants. Un centre médical assure une prise en charge médicale optimale. La Nymphenburgerstraße offre de nombreuses possibilités de shopping, telles que Feinkost Käfer, des boutiques, des cafés et des restaurants haut de gamme.

    La FRIENDS Tower est très bien desservie par les transports en commun : la station de S-Bahn « Hirschgarten » (ligne principale) offre une liaison directe vers l'aéroport, et les lignes de tramway 16 et 17 apportent un confort supplémentaire. La gare centrale est accessible en 5 minutes, la Marienplatz en 8 minutes. Le Mittlerer Ring permet un accès rapide aux autoroutes.

    Les environs offrent de nombreuses possibilités de loisirs : l'ESV propose un large programme sportif, et le Body & Soul Center invite à la détente avec un mur d'escalade, un bassin sportif de 25 mètres et un espace bien-être. Des oasis de verdure telles que le Jardin anglais, le parc du château de Nymphenburg, le Hirschgarten et le parc olympique offrent des possibilités de détente et de nombreuses activités de loisirs.

    Informations sur l'énergie


    Chauffage:
    chauffage au sol
    Classe energétique:
    B
    Valeur énergétique:
    60 kWh/(m²*a)
    Source d'énergie:
    chauffage urbain
    Type de certificat de performance énergétique:
    Type de certificat de performance énergétique
    Année de construction:
    2016

    Autres


    L'appartement est disponible.
    Il convient parfaitement à un investissement immobilier ou à un usage personnel. Nous nous ferons un plaisir de répondre à vos questions lors d'un entretien individuel.

    En tant qu'agence leader dans le domaine de la location temporaire, Mr. Lodge se tient également à la disposition des nouveaux propriétaires ou investisseurs pour leur fournir des conseils, des services de location et toute une gamme de prestations immobilières.

    Mr. Lodge propose ce bien en exclusivité.

    Veuillez noter que la fiche descriptive numérique a pour but de fournir un premier aperçu et que toutes les informations sont basées sur les renseignements fournis par le propriétaire ou le mandant, pour lesquels nous déclinons toute responsabilité.

    Traduit par DeepL

    Plus d’informations


    Mr. Lodge GmbH traite les données personnelles que vous avez fournies conformément à la politique de confidentialité de Mr.Lodge.

    Cookie notice
    This website uses cookies to personalize content, customize and measure advertising, and provide a safe experience. By clicking the "Allow all and continue" button, you consent to the collection of data via cookies.
    Merci d'activer les cookies dans les paramètres de votre navigateur !