Désolé, cet objet est déjà loué
80538 München
ID 14461

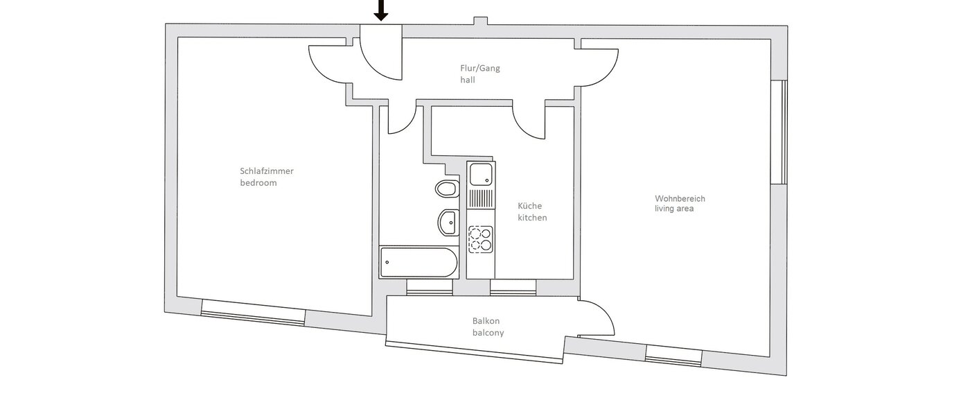
2 pièces
env. 70 m²
Étage 2
Cet appartement a été photographié et visité personnellement par nos soins.

Hier wohnen Sie im begehrten Lehel-Viertel von München, nahe dem St.-Anna-Platz. Die Wohnung ist vollständig neu eingerichtet und besticht durch ihre helle, freundliche Atmosphäre. Der Wohnraum ist der Mittelpunkt der Wohnung und mit einer gemütlichen Sitz- und Essgruppe ausgestattet. Das Schlafzimmer verfügt über Verdunkelungsvorhänge, einen großen Kleiderschrank und einen praktischen Arbeitsplatz für das Arbeiten von zu Hause. Zudem gibt es einen überdachten Balkon mit einer gemütlichen Sitzmöglichkeit.

Die Lage verspricht ein pulsierendes Stadtleben mit erstklassigen Annehmlichkeiten wie der Eisbachwelle im Englischen Garten und der Nähe zur Isar. Zahlreiche gastronomische und kulturelle Angebote sowie die unmittelbare Nähe zur U-Bahn-Station Lehel machen dieses Zuhause zum idealen Ausgangspunkt für Entdeckungen in München. Jeden Donnerstag findet ein Wochenmarkt auf dem St.-Anna-Kirchplatz gegenüber statt.

 

Appartements similaires

appartement avec 2 pièces | Munich-Giesing | 14529
Vidéo
16.06.2026 pour 6-36 mois
2 pièces
65 m²
Munich-Giesing
2,200
€/mois
appartement avec 2 pièces | Munich-Trudering | 14400
Vidéo
dès que possible pour 6-36 mois
2 pièces
51 m²
Munich-Trudering
1,790
€/mois
appartement avec 2 pièces | Unterföhring | 14540
Vidéo
19.05.2026 pour 6-24 mois
2 pièces
47 m²
Unterföhring
1,750
€/mois
appartement avec 2 pièces | Munich-Thalkirchen | 11596
Vidéo
dès que possible pour 6-24 mois
2 pièces
45 m²
Munich-Thalkirchen
1,850
€/mois
appartement avec 2 pièces | Munich-Fasangarten | 14668
Vidéo
dès que possible pour 6-36 mois
2 pièces
100 m²
Munich-Fasangarten
2,100
€/mois
Cookie notice
This website uses cookies to personalize content, customize and measure advertising, and provide a safe experience. By clicking the "Allow all and continue" button, you consent to the collection of data via cookies.
Merci d'activer les cookies dans les paramètres de votre navigateur !