Désolé, cet objet est déjà loué

Maison mitoyenne idyllique avec grand terrain

Walchstadter Höhe
82057 Icking
ID 14465
€ 3.400,-
inclus: charges, eau, internet, abri de voiture ;
en su: courant, Frais de chauffage et d'eau chaude

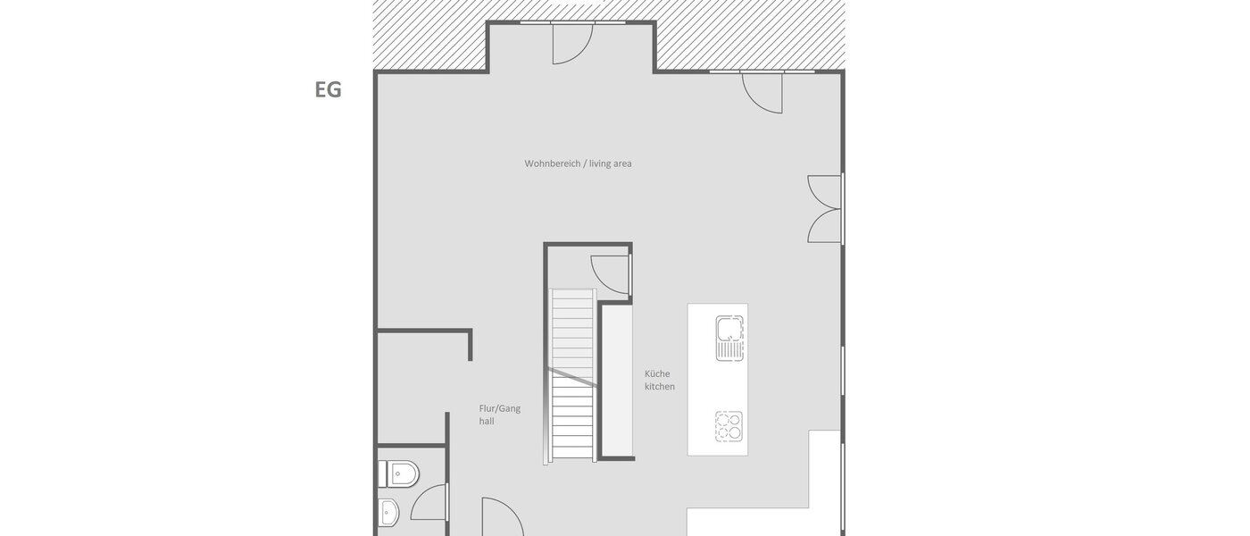
5 pièces
env. 186 m²
env. 1200 m²
Disponibilité
01.03.2026 jusqu'à ce 31.08.2026
Durée min. du bail
6 mois
nombre de personnes
convient pour 6 personnes
Frais de service
Aucun
Restrictions
seulement pour les non fumeur, Animaux sur demande

Bitte beachten Sie: dieses 5-Zimmer Haus steht nur maximal bis zum 31.August 2026 zur Verfügung (Stand 12.August 2025)

Équipement

internet
Télévision
aspirateur
Machine à laver
Sèche-linge
Machine à laver la vaisselle
Serviettes de bain
Linge de maison
Sèche-cheveux
Fer à repasser
Cave
Garage
Ascenseur
Balcon
Terrasse

Informations

Année de construction
2017
pièces
salon et salle à manger et salle à manger non séparés
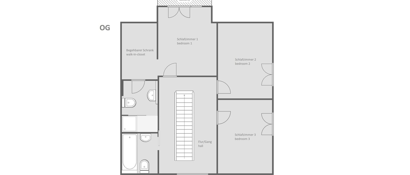
Première chambre à coucher avec lit double (180 x 200 cm)
deuxième chambre à coucher avec lit à la francaise (140 x 200 cm)
troisième chambre avec lit simple (100 x 200 cm)
Dressing
salle de jeux
Salle de bain avec douche
salle de bain avec baignoire
deux toilettes
Revêtements de sol
parquet, carrelage
ameublement
comme neuf, en partie ancien, mélangé, bien arrangé et clair, de haute qualité
Cuisine
cuisine intégrée partiellement ouverte sur la salon, avec fenêtre, congélateur, machine à laver la vaisselle, plaques à induction, plaques vitrocéramiques, four électrique, hotte, four a vapeur, four compact avec micro-ondes intégré , Machine à café, complet avec des plats
Détails de l'équipement
Maison de l'Espace économique avec lave-linge
2 Smart-TV (connexion à Internet)
Linge de maison et sèche-cheveux inclus.
linge de fer à repasser, planche à repasser, aspirateur
cheminée fermée
Internet
Wi-Fi
forfait internet illimité (jusqu´à 1.000 Mbit/s)
frais compris dans le loyer
spéciaux
Balcon
Terrasse
Vue sur le jardin
Grand jardin
Cave
de stationnement
Abri de voiture avec deux places de parking
frais compris dans le loyer
Informations et explication du loyer
Inclus: charges, paiement anticipé pour l'eau à hauteur de 0,- € /mois, internet, abri de voiture
En su: courant, Frais de chauffage et d'eau chaude
Dépôt
2 mois de loyer
Redevance radiophonique
Redevance radiophonique pour les organismes de diffusion radiophoniques de droit public. La redevance radiophonique mensuelle doit être payée par le locataire directement à ARD ZDF Deutschlandradio, service de la redevance, et s’élève à 18,36 € par mois. Elle n’est pas incluse dans le loyer, sauf mention contraire spécifique : plus d'informations
diagnostic de performance énergétique
Année de construction: 2017
Type de certificat de performance énergétique: Certificat de performance énergétique à la base du besoin énergétique
Sources d'énergie principales: granulés de bois
Classe d'efficacité énergétique: B
La consommation finale d'énergie: 58,00 kWh/(m²*a)
Nicole Kaufmann

Nicole Kaufmann

Chef d’équipe | Conseiller clientèle

Vous n'avez pas encore trouvé l'appartement qui vous convient ?

Notre équipe de location se fera un plaisir de vous aider dans votre recherche. Il vous suffit de remplir notre formulaire de recherche et nous vous contacterons dans les plus brefs délais.

Effectuer une recherche

emplacement de l'appartement

Walchstadter Höhe

Icking

  • bonne situation
  • très calme
  • env. 24,5 km au sud-ouest du centre-ville
En savoir plus sur les environs
S-Bahn
Ligne S7, Arrêt Icking (25 minutes à pied)

Appartements similaires

dernière maison de la rangée de maisons mitoyennes avec 5 pièces | Eichenau | 13696
Vidéo
01.04.2026 pour 6-48 mois
5 pièces
190 m²
Eichenau
3,550
€/mois
dernière maison de la rangée de maisons mitoyennes avec 5 pièces | Munich-Untermenzing | 14723
Vidéo
01.03.2026 pour 6-36 mois
5 pièces
140 m²
Munich-Untermenzing
3,200
€/mois
appartement avec 5 pièces | Munich-Harlaching | 14713
Vidéo
dès que possible pour 3 mois
5 pièces
175 m²
Munich-Harlaching
3,900
€/mois
maison mitoyenne avec 5 pièces | Munich-Lochhausen | 14662
Vidéo
dès que possible pour 6-36 mois
5 pièces
150 m²
Munich-Lochhausen
3,150
€/mois
appartement avec 1.5 pièces | Munich-Nymphenburg | 10533
Vidéo
01.03.2026 pour 6-24 mois
1.5 pièces
57 m²
Munich-Nymphenburg
2,450
€/mois

Questions fréquentes

Pour vous, en tant que locataire, notre service est gratuit. Après la signature du contrat, vous payez au bailleur le loyer mensuel ainsi qu'une caution unique (en général deux mois de loyer).

Si vous avez trouvé une offre qui vous convient sur notre site web ou si vous souhaitez que nous vous envoyions des offres adaptées, veuillez tout d'abord remplir intégralement notre formulaire d'inscription. Nos consultants vous contacteront ensuite dans les plus brefs délais afin de discuter des étapes suivantes. Nous organisons volontiers une visite sur place. Si vous avez choisi un appartement, nous en discutons avec le propriétaire et établissons le contrat de location après avoir reçu son accord.

La période de location indiquée est contraignante. Si un appartement est proposé pour le 1er juin par exemple, il ne peut pas être loué plus tôt, ni même beaucoup plus tard en règle générale. Si la période de location souhaitée diffère de l'offre, n'hésitez pas à en informer votre consultant. Si une date de fin fixe est indiquée, l'appartement ne peut pas être prolongé. Si la période de location indiquée est variable, il est possible de négocier de légères différences avec le bailleur.

Les fournisseurs privés d'appartements et de maisons à Munich sont soumis à une durée de location minimale de six mois. La ville de Munich considère les périodes de location inférieures à six mois comme un détournement de l'usage d'un logement, c'est pourquoi nous ne proposons des appartements et des maisons que pour six mois ou plus.<br />De leur côté, les prestataires commerciaux tels que les appartements de service ne peuvent pas louer plus de six mois dans de nombreux endroits. Nous faisons donc une distinction entre les offres de courte durée et les offres de longue durée.<br />Dans la région de Tegernsee, les prestataires privés sont également autorisés à louer pour des périodes plus courtes et nous pouvons donc proposer une location meublée à partir d'un mois.

Si vous souhaitez une visite personnelle sur place, faites-le nous savoir. Si l'appartement est encore loué, nos consultants conviendront du rendez-vous avec le locataire actuel. Si l'appartement est déjà libre, des rendez-vous à court terme sont généralement possibles. Veuillez noter que l'appartement est généralement loué à la première personne qui fait une promesse ferme. Ne planifiez donc pas les rendez-vous trop tard, sinon les biens souhaités pourraient être loués entre-temps.

Sur demande, vous pouvez visiter virtuellement nos offres par appel vidéo. Sur notre site web, vous trouverez des photos et des vidéos de haute qualité du bien immobilier, des environs ainsi que des informations détaillées supplémentaires sur chaque objet.

Le contrat de location est conclu entre le locataire et le bailleur. Dans la plupart des cas, le contrat de location est rédigé par Mr. Lodge - en accord avec le locataire et le propriétaire - et transmis aux deux parties pour signature.

Comme convenu dans le contrat de location, l'appartement doit être rendu avec un nettoyage final professionnel. Au moment du départ, le bailleur confie le nettoyage final à une entreprise spécialisée. Les frais sont calculés en fonction du temps passé et sont généralement à la charge du locataire. Le bailleur reçoit la facture de l'entreprise de nettoyage et déduit les frais de la caution. Un nettoyage préalable approfondi permet de réduire les coûts du nettoyage commercial. Pour savoir tout ce qui fait partie d'un nettoyage final, veuillez consulter notre liste de contrôle.

Cookie notice
This website uses cookies to personalize content, customize and measure advertising, and provide a safe experience. By clicking the "Allow all and continue" button, you consent to the collection of data via cookies.
Merci d'activer les cookies dans les paramètres de votre navigateur !